


































U$D 630,000
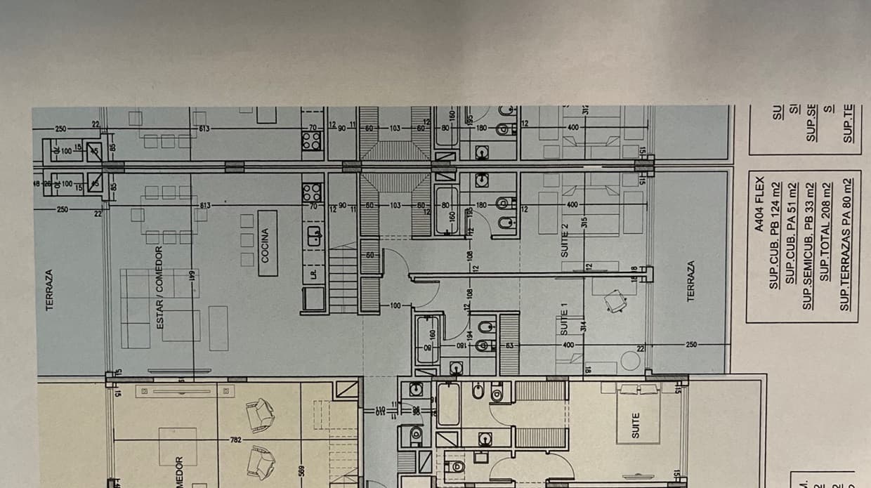
Departamento con vista a las Piscinas y al Bosque, desarrollado en 175 m2 cubiertos, 33 m2 semicubiertos, 80 m2 descubiertos y 2 cocheras (25 m2, 1 subterránea y 1 descubierta) en 2 plantas. Pisos en mármol, calefacción por piso radiante con regulación individual, aire ac tipo split y aberturas en aluminio doble vidrio. Encontramos living y comedor integrados con salida al balcón con parrilla y cocina con amoblamientos. Toilette de recepción. La suite principal con vestidor y salida al balcón. Luego un dormitorio con placard y un baño completo con salida al balcón.En Planta Alta un dormitorio con vestidor y baño completo. Una amplia terraza con parrilla. Una cochera en subsuelo y otra al descubierto en PB.Bouquet Pilar se desarrolló en más de dos hectáreas de terreno. Cuenta con 7000 mts de Parque Central con piscinas, solarium y 2500 mts cubiertos de amenities situados en el subsuelo con grandes galerÃas y ventanales que dan al parque central.Los edificios poseen amplios y elegantes halls de entrada por edificio. Cuentan con cocheras cubiertas y descubiertas. Tienen estacionamientos de cortesÃa, ingresos controlados y seguridad permanente. Departamentos luminosos con amplios ventanales, de 98 a 400 m2. De 1, 2, 3 y más dormitorios. Con terrazas, galerÃas y jardines. Los amenities se encuentran en un sector diferenciado para preservar la privacidad. Gimnasio, Spa, Pileta Indoor, Business Center, Amplio Sector de Recepciones, 3 grandes piletas outdoor con amplios solariums, Playroom para niños y adultos, Microcine.
Ambientes: 4
Dormitorios: 3
Dormitorios en suite: 1
Estado: Excelente
Antiguedad: 4 años
Tipo de zona: Residencial
Tipo de calefacción: Losa radiante
Aberturas: Aluminio doble vidrio
Bouquet Pilar se desarrolló en más de dos hectáreas de terreno. Cuenta con 7000 mts de Parque Central con piscinas, solarium y 2500 mts cubiertos de amenities situados en el subsuelo con grandes galerÃas y ventanales que dan al parque central. Los edificios poseen amplios y elegantes halls de entrada por edificio. Cuentan con cocheras cubiertas y descubiertas. Tienen estacionamientos de cortesÃa, ingresos controlados y seguridad permanente. Departamentos luminosos con amplios ventanales, de